الخدمة متوقفة مؤقتاً وغير متاحة للشراء حاليًا.

عن الخدمة

تعريف :-

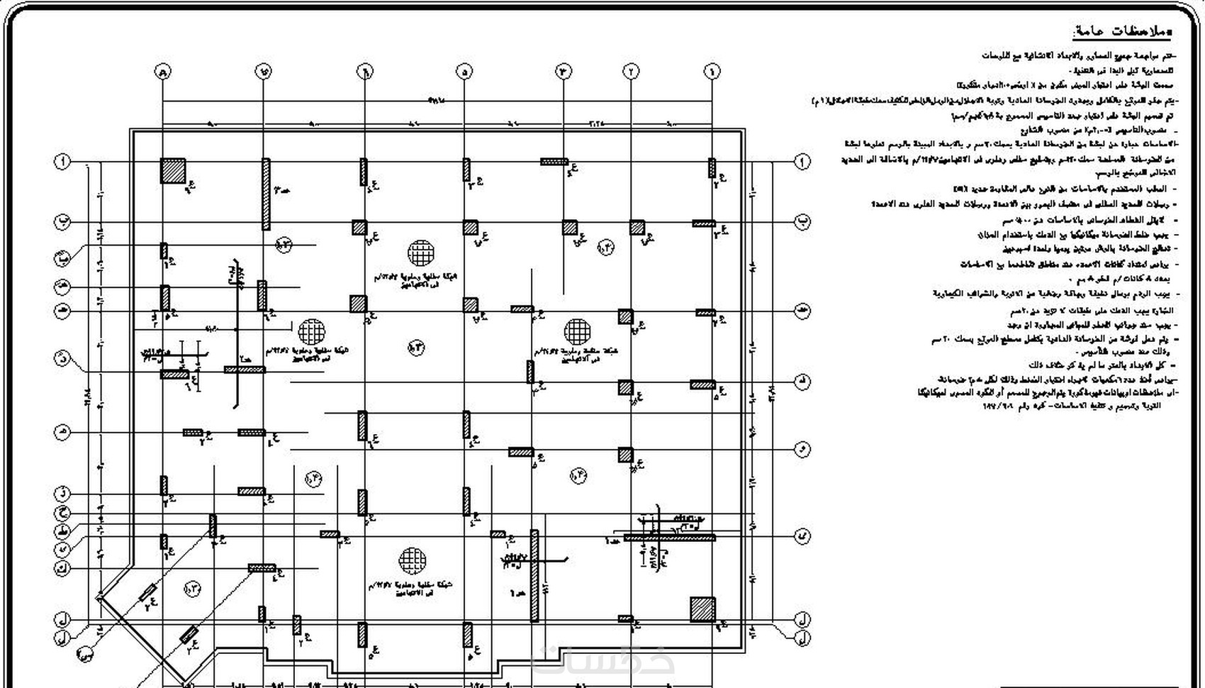
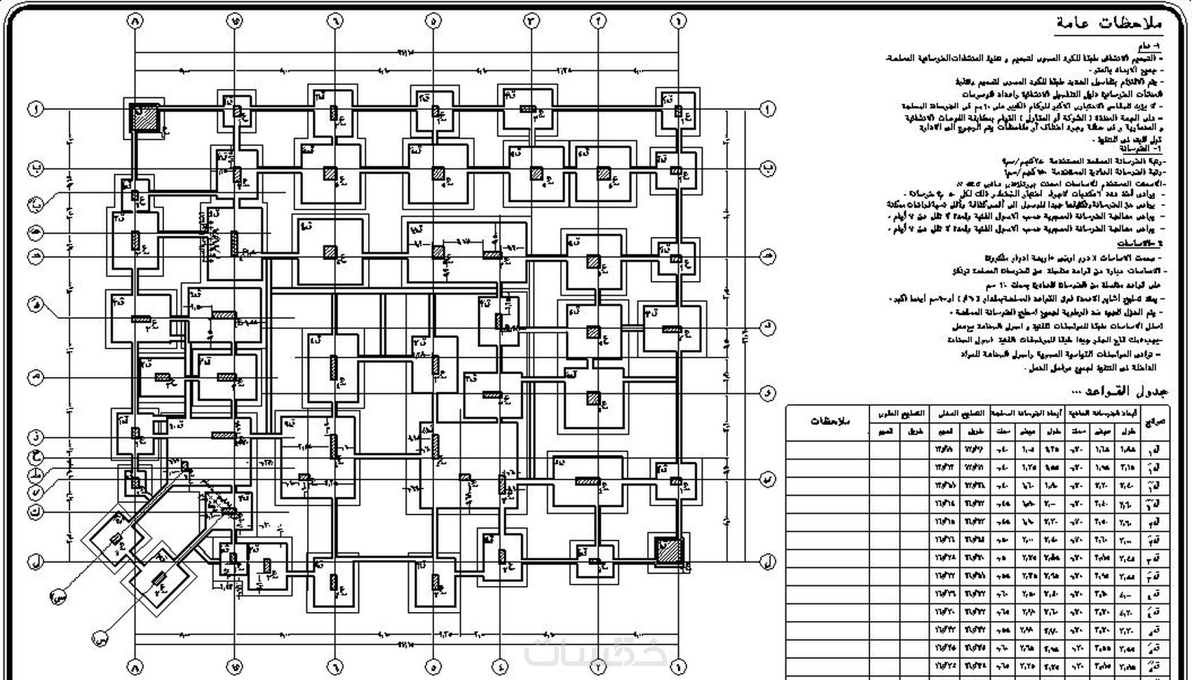
مهندس مدنى " مصمم إنشائي / رسام معماري "

الخدمة المقدمة :-
- اقوم برسم اللوحات الهندسية بدقة عالية وجودة ممتازة مع السرعة في التنفيذ .
- اذا كان المخطط عباره عن صوره او ملف pdf او مرسوم باليد أو سكانر يتم رسم المخطط ببرنامج AutoCAD .
- سيتم تسليم المنتج بصيغة DWG & PDF على حسب طلب العميل .
- يتم عمل كحد اقصى تعديلين على المنتج .
- قيمه الخدمة للكل 50 متر مسطح .


معرض الأعمال

شراء الخدمة

سعر الخدمة
$5.00

بطاقة الخدمة

بطاقة الخدمة

شراء الخدمة

سعر الخدمة
$5.00