الخدمة متوقفة مؤقتاً وغير متاحة للشراء حاليًا.

عن الخدمة

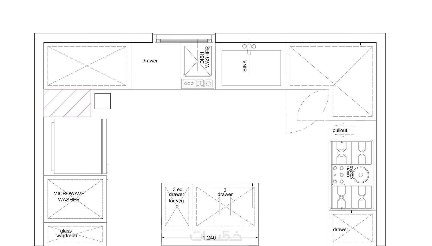
متخصصة في تصميم المطابخ باستخدام SketchUp و AutoCAD، مع التركيز على تقديم تصاميم دقيقة dimension-wise تضمن التنفيذ السليم وتحدد التفاصيل مثل عدد الألواح المطلوبة. الخدمة الأساسية مخصصة لتصاميم تصل إلى 10 متر مكعب، مقابل سعر محدد بناءً على احتياجات المشروع.


معرض الأعمال

شراء الخدمة

سعر الخدمة
$5.00

بطاقة الخدمة

بطاقة الخدمة

شراء الخدمة

سعر الخدمة
$5.00

آراء المشترين

جودة الخدمة
التواصل والمتابعة
التسليم بالموعد
المشتري منذ 11 شهر و5 أيام

اتمنى التوفيق والنجاح