الخدمة متوقفة مؤقتاً وغير متاحة للشراء حاليًا.

عن الخدمة

اولا:
اشكرك على وقتك للدخول الي خدماتي
ثانيا:
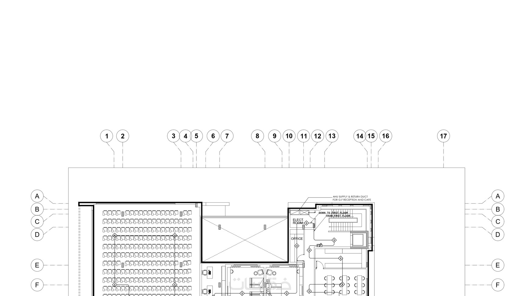
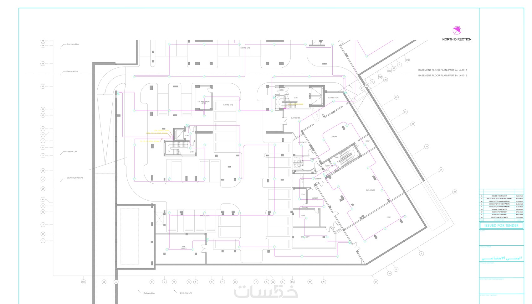
اعمل فى مجال الاستشارات الهندسية و المقاولات منذ اكثر من 15 عام اقوم بعمل تصميم شبكات انذار الحريق المعنونة Fire alarm addressable system او شبكات الحريق التقليدية Fire alarm conventional system
و عمل صواعد للنظام Fire alarm riser و مقايسة اذا طلب العميل
السعر للوحه الواحده

اذا كنت تقرأ حتي الان شكرا على وقتك
و اتمني ان اتعامل معك و اكون عند حسن ظنك
واك جزيل الشكر و التقدير


معرض الأعمال

شراء الخدمة

سعر الخدمة
$5.00

بطاقة الخدمة

بطاقة الخدمة

شراء الخدمة

سعر الخدمة
$5.00